13 LITTLE JOHN DRIVEELKTON, MD 21921




Mortgage Calculator
Monthly Payment (Est.)
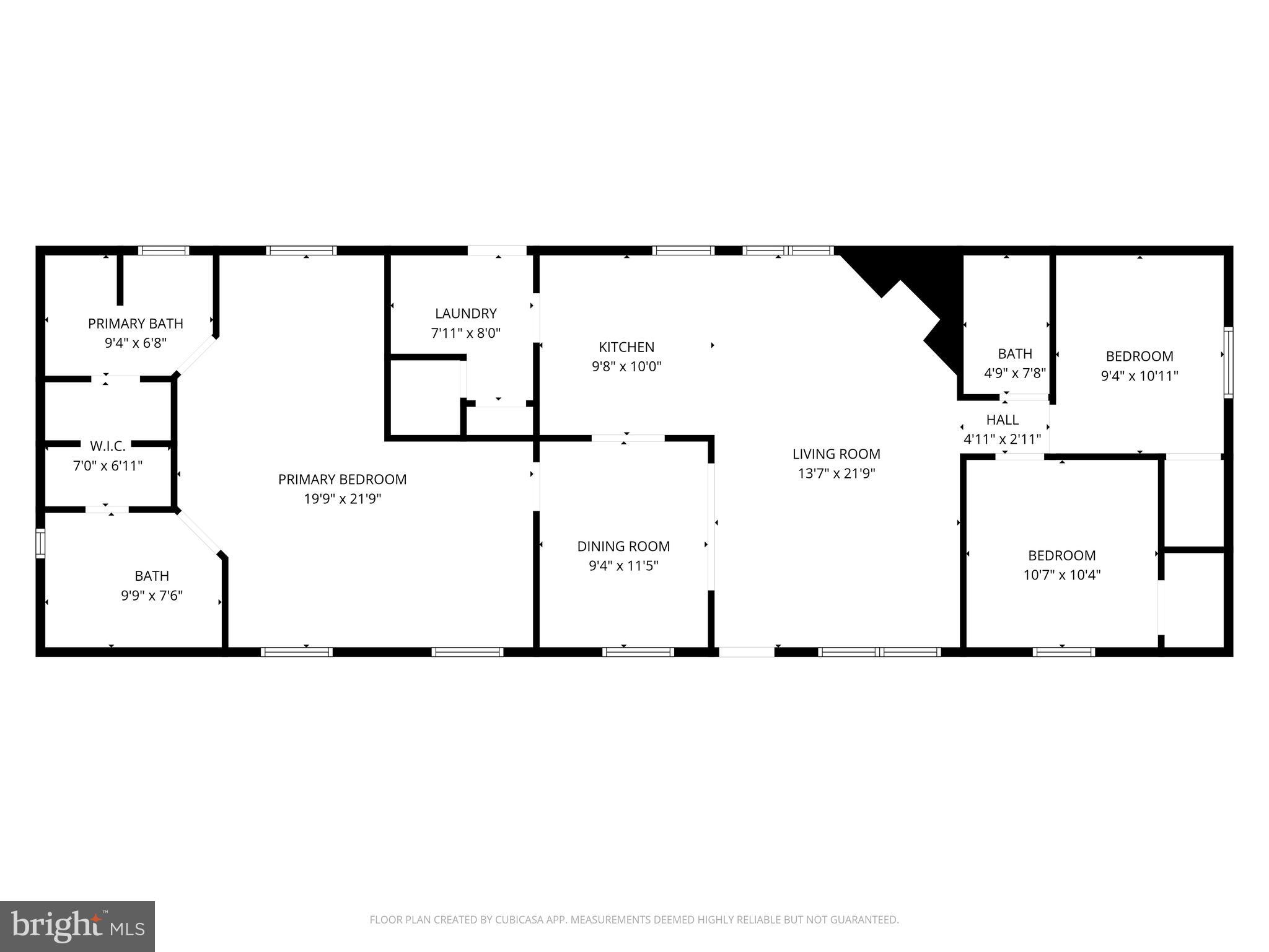
$356Welcome to 13 Little John Drive in Elkton, Maryland — a beautifully cared- home ready to welcome its next chapter. This charming property offers three spacious bedrooms and three full bathrooms, thoughtfully designed for comfort and convenience. Step inside to an inviting open-concept living room and kitchen, featuring updated flooring and a bright, airy layout perfect for everyday living or entertaining. The home also includes a generously sized laundry room and a large primary bathroom suite with two full bathrooms and a double walk in closet, providing an abundance of functional space. Outside, you'll find a large storage shed, ideal for tools, hobbies, or seasonal items. The property is perfectly situated between North East and Elkton, offering easy access to local shops, dining, and commuter routes—making it an ideal location for anyone seeking both comfort and convenience. Don't miss your chance to see this delightful home in person—a must-see opportunity! Must be park approved to purchase
| 10 hours ago | Listing updated with changes from the MLS® | |
| yesterday | Listing first seen on site |
The real estate listing information is provided by Bright MLS is for the consumer's personal, non-commercial use and may not be used for any purpose other than to identify prospective properties consumer may be interested in purchasing. Any information relating to real estate for sale or lease referenced on this web site comes from the Internet Data Exchange (IDX) program of the Bright MLS. This web site references real estate listing(s) held by a brokerage firm other than the broker and/or agent who owns this web site. The accuracy of all information is deemed reliable but not guaranteed and should be personally verified through personal inspection by and/or with the appropriate professionals. Properties in listings may have been sold or may no longer be available. The data contained herein is copyrighted by Bright MLS and is protected by all applicable copyright laws. Any unauthorized collection or dissemination of this information is in violation of copyright laws and is strictly prohibited. Copyright © 2020 Bright MLS. All rights reserved.


Did you know? You can invite friends and family to your search. They can join your search, rate and discuss listings with you.